Property Details
Property Details
Property Details
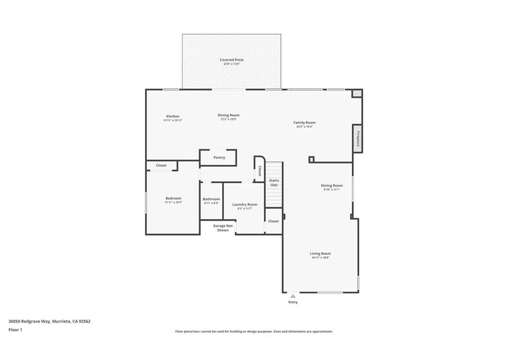
36050 Redgrave Way, Murrieta, CA 92562
$800,000 LOGIN TO SAVE
36050 Redgrave Way, Murrieta, CA 92562
Bedrooms: 7
Bathrooms: 3
Area: 4261 SqFt.
Description
Welcome to a spacious 7 bedroom, 3 bathroom home in the desirable Blackmore Ranch community. With nearly 4300 square feet of living space, this cul-de-sac home delivers the scale & flexibility many buyers need for a large household, multigenerational living, or dedicated work from home space. The main level offers a generously sized living area with formal living & dining spaces, a large family room with gas fireplace & a giant kitchen featuring granite counters, abundant cabinetry, & a center island that works for cooking, casual meals, & entertaining! The open & flowing first floor floorplan connects to the backyard, designed for easy living & entertaining, offering a clean, low maintenance space that still allows room to customize. Whether you want to add a play area, garden beds, a fire pit, or outdoor kitchen, the layout gives you flexibility without the upkeep. The covered patio creates a true outdoor living space that can be enjoyed year-round for dinners, relaxing evenings & weekend gatherings. Completing the downstairs are the generously sized first floor bedroom adjacent to the first floor bathroom with walk-in shower & a large laundry room with storage closet & garage access. Upstairs you will find the massive primary suite, plus 5 additional bedrooms, along with an oversized loft that can serve as a media room, game room, homework zone, gym or office. Location is a standout benefit. Blackmore Ranch is known for its quiet streets, pride of ownership & convenient access to daily life. You are minutes from grocery stores, coffee shops, restaurants, fitness centers
Features
Listing provided courtesy of Tom Bashe of Localist Realty. Last updated . Listing information © 2025 Sandicor.
Work with Us
Under the Compass brand, Ramon and his team take great pride in having the ability to utilize today's cutting edge technology, marketing resources, and local and global connections to perfectly unite extraordinary places with the extraordinary buyers who will cherish them as we do.
Contact Us
North County Office
12275 El Camino Real, Suite 100
San Diego, CA 92130
858.345.4514
La Jolla Office
7863 Girard Avenue, Suite 208
La Jolla, CA, 92037
858.277.3325
San Diego Office
655 W Broadway
San Diego, CA 92101
619.317.1875

This information is deemed reliable but not guaranteed. You should rely on this information only to decide whether or not to further investigate a particular property. BEFORE MAKING ANY OTHER DECISION, YOU SHOULD PERSONALLY INVESTIGATE THE FACTS (e.g. square footage and lot size) with the assistance of an appropriate professional. You may use this information only to identify properties you may be interested in investigating further. All uses except for personal, non-commercial use in accordance with the foregoing purpose are prohibited. Redistribution or copying of this information, any photographs or video tours is strictly prohibited. This information is derived from the Internet Data Exchange (IDX) service provided by Sandicor®. Displayed property listings may be held by a brokerage firm other than the broker and/or agent responsible for this display. The information and any photographs and video tours and the compilation from which they are derived is protected by copyright. Compilation © 2025 Sandicor®, Inc.
Copyright © 2025 Maldonado Team. All Rights Reserved.
Powered by: 

This information is deemed reliable but not guaranteed. You should rely on this information only to decide whether or not to further investigate a particular property. BEFORE MAKING ANY OTHER DECISION, YOU SHOULD PERSONALLY INVESTIGATE THE FACTS (e.g. square footage and lot size) with the assistance of an appropriate professional. You may use this information only to identify properties you may be interested in investigating further. All uses except for personal, non-commercial use in accordance with the foregoing purpose are prohibited. Redistribution or copying of this information, any photographs or video tours is strictly prohibited. This information is derived from the Internet Data Exchange (IDX) service provided by Sandicor®. Displayed property listings may be held by a brokerage firm other than the broker and/or agent responsible for this display. The information and any photographs and video tours and the compilation from which they are derived is protected by copyright. Compilation © 2025 Sandicor®, Inc.
Copyright © 2025 Maldonado Team. All Rights Reserved.
Powered by: 







































