Property Details
Property Details
Property Details
64845 Sun Oro, Joshua Tree, CA 92252
$165,000 LOGIN TO SAVE
64845 Sun Oro, Joshua Tree, CA 92252
Bedrooms:
Bathrooms:
Area: SqFt.
Description
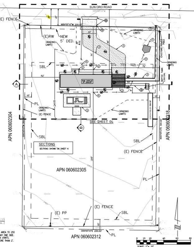
This land comes with a full set of construction ready plans for a rare, shovel-ready custom build luxury modern masterpiece pool house opportunity in Joshua Tree! The design has Mid-Century Modern elements and low, flat rooflines that are a signature look of world-famous California modern desert architecture pioneered in this region in the 1950s. Situated on a 1.38 acre lot the plans call for a 1,558 sf home with 3 beds and 2 full baths. As an option, the listing broker, who is also an experienced and licensed general contractor, can construct this house completely turnkey (handling all construction) if requested by the buyer with a separate agreement. The current owner has already invested heavily in bringing the project to this advanced stage, covering the cost of surveying, civil engineering, grading plans, custom luxury architectural plans, heated swimming pool and spa plans, a percolation test, engineered septic plans, and the installation of a brand-new water supply meter. With plans in the final stages of county approval and utilities like water and electricity already on-site, you can start building almost immediately, saving valuable time and money. A key highlight is the property's location on a paved road, a feature that combines the best of both worlds: the rural, open serenity of the desert with effortless access for any type of vehicle, from SUVs to low-profile sports cars. Designed with short-term luxury rental in mind, the floor plan includes an oversized closet in the hallway in lieu of a garage for additional storage. A carport with a trellis and electric
Features
Listing provided courtesy of Amrit Bakshi of Amrit Bakshi, Broker. Last updated . Listing information © 2025 Sandicor.
Work with Us
Under the Compass brand, Ramon and his team take great pride in having the ability to utilize today's cutting edge technology, marketing resources, and local and global connections to perfectly unite extraordinary places with the extraordinary buyers who will cherish them as we do.
Contact Us
North County Office
12275 El Camino Real, Suite 100
San Diego, CA 92130
858.345.4514
La Jolla Office
7863 Girard Avenue, Suite 208
La Jolla, CA, 92037
858.277.3325
San Diego Office
655 W Broadway
San Diego, CA 92101
619.317.1875

This information is deemed reliable but not guaranteed. You should rely on this information only to decide whether or not to further investigate a particular property. BEFORE MAKING ANY OTHER DECISION, YOU SHOULD PERSONALLY INVESTIGATE THE FACTS (e.g. square footage and lot size) with the assistance of an appropriate professional. You may use this information only to identify properties you may be interested in investigating further. All uses except for personal, non-commercial use in accordance with the foregoing purpose are prohibited. Redistribution or copying of this information, any photographs or video tours is strictly prohibited. This information is derived from the Internet Data Exchange (IDX) service provided by Sandicor®. Displayed property listings may be held by a brokerage firm other than the broker and/or agent responsible for this display. The information and any photographs and video tours and the compilation from which they are derived is protected by copyright. Compilation © 2025 Sandicor®, Inc.
Copyright © 2025 Maldonado Team. All Rights Reserved.
Powered by: 

This information is deemed reliable but not guaranteed. You should rely on this information only to decide whether or not to further investigate a particular property. BEFORE MAKING ANY OTHER DECISION, YOU SHOULD PERSONALLY INVESTIGATE THE FACTS (e.g. square footage and lot size) with the assistance of an appropriate professional. You may use this information only to identify properties you may be interested in investigating further. All uses except for personal, non-commercial use in accordance with the foregoing purpose are prohibited. Redistribution or copying of this information, any photographs or video tours is strictly prohibited. This information is derived from the Internet Data Exchange (IDX) service provided by Sandicor®. Displayed property listings may be held by a brokerage firm other than the broker and/or agent responsible for this display. The information and any photographs and video tours and the compilation from which they are derived is protected by copyright. Compilation © 2025 Sandicor®, Inc.
Copyright © 2025 Maldonado Team. All Rights Reserved.
Powered by: 





















































