Property Details
Property Details
Property Details
1485 Morena, San Diego, CA 92110
$1,845,000 LOGIN TO SAVE
1485 Morena, San Diego, CA 92110
Bedrooms:
Bathrooms:
Area: SqFt.
Description
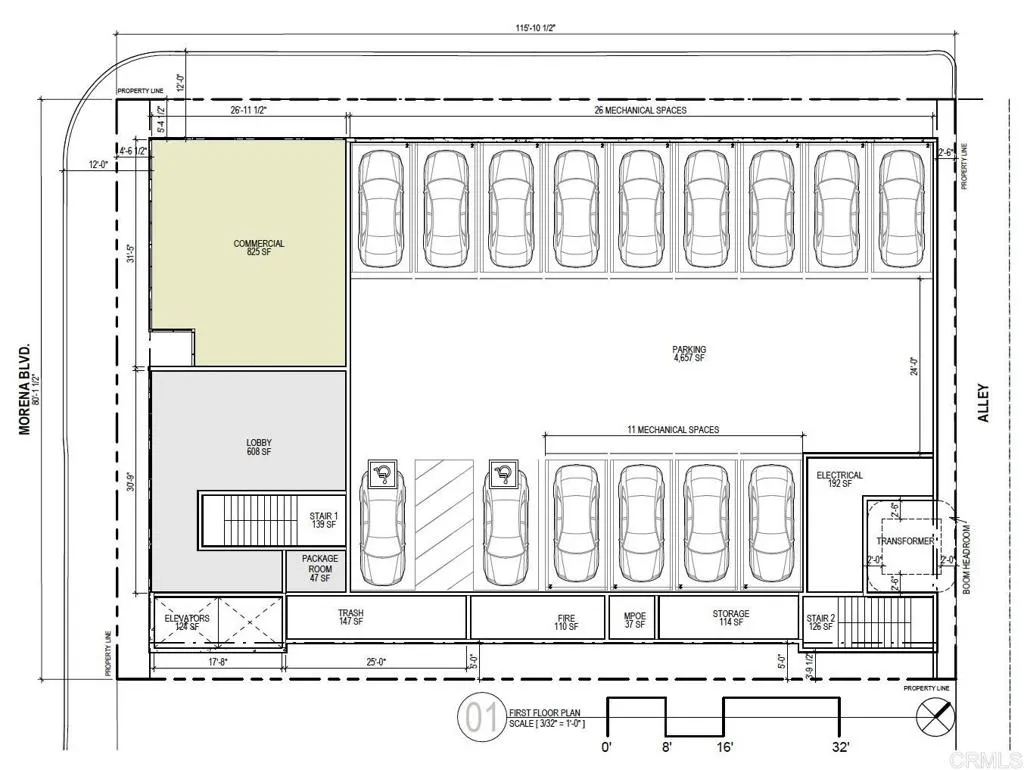
NOTE NEW PRICE! A very well-located high-density multi-family development site situated in the Bay Park neighborhood of San Diego. This 9,280 square-foot paved corner lot is level and has alley access. Flexible commercial zoning (CC 4-2) allows for commercial or residential uses. Located within San Diegos Complete Communities overlay (providing a 5.5 FAR allowance). Complete Communities is an initiative by the City of San Diego that provides high-density residential development along the citys transit corridors. Fault hazard evaluation has determined that there is no evidence of active faults. Phase I & II, boundary & topographic survey, soils report and feasibility study are complete. Seller also has a 9 unit townhome study (2 x 1750 sf homes, 3 x 1500 sf homes and 4 x 1150 sf homes).
Features
Listing provided courtesy of Tommy Crudo of Compass. Last updated . Listing information © 2025 Sandicor.
Work with Us
Under the Compass brand, Ramon and his team take great pride in having the ability to utilize today's cutting edge technology, marketing resources, and local and global connections to perfectly unite extraordinary places with the extraordinary buyers who will cherish them as we do.
Contact Us
North County Office
12275 El Camino Real, Suite 100
San Diego, CA 92130
858.345.4514
La Jolla Office
7863 Girard Avenue, Suite 208
La Jolla, CA, 92037
858.277.3325
San Diego Office
655 W Broadway
San Diego, CA 92101
619.317.1875

This information is deemed reliable but not guaranteed. You should rely on this information only to decide whether or not to further investigate a particular property. BEFORE MAKING ANY OTHER DECISION, YOU SHOULD PERSONALLY INVESTIGATE THE FACTS (e.g. square footage and lot size) with the assistance of an appropriate professional. You may use this information only to identify properties you may be interested in investigating further. All uses except for personal, non-commercial use in accordance with the foregoing purpose are prohibited. Redistribution or copying of this information, any photographs or video tours is strictly prohibited. This information is derived from the Internet Data Exchange (IDX) service provided by Sandicor®. Displayed property listings may be held by a brokerage firm other than the broker and/or agent responsible for this display. The information and any photographs and video tours and the compilation from which they are derived is protected by copyright. Compilation © 2025 Sandicor®, Inc.
Copyright © 2025 Maldonado Team. All Rights Reserved.
Powered by: 

This information is deemed reliable but not guaranteed. You should rely on this information only to decide whether or not to further investigate a particular property. BEFORE MAKING ANY OTHER DECISION, YOU SHOULD PERSONALLY INVESTIGATE THE FACTS (e.g. square footage and lot size) with the assistance of an appropriate professional. You may use this information only to identify properties you may be interested in investigating further. All uses except for personal, non-commercial use in accordance with the foregoing purpose are prohibited. Redistribution or copying of this information, any photographs or video tours is strictly prohibited. This information is derived from the Internet Data Exchange (IDX) service provided by Sandicor®. Displayed property listings may be held by a brokerage firm other than the broker and/or agent responsible for this display. The information and any photographs and video tours and the compilation from which they are derived is protected by copyright. Compilation © 2025 Sandicor®, Inc.
Copyright © 2025 Maldonado Team. All Rights Reserved.
Powered by: 


















