Property Details
Property Details
Property Details
28254 Canterbury Court, Valencia, CA 91354
$585,000 LOGIN TO SAVE
28254 Canterbury Court, Valencia, CA 91354
Bedrooms: 2
Bathrooms: 3
Area: 1485 SqFt.
Description
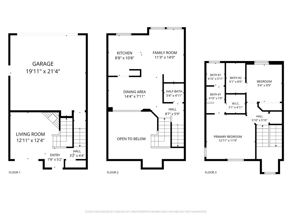
Welcome to this charming 2 bedroom, 2.5 bathroom townhome located in the highly sought-after Village Walk community in Valencia Northpark. Stroll along the beautifully landscaped pathways shaded by mature trees and arrive at the inviting front entrance. Inside, the first floor features a cozy living room with a warm fireplace, beautiful birch wood flooring, and serene views of the patio and greenbelt. Upstairs, the second level boasts a formal dining room that overlooks the living room, creating an open feel. Adjacent to the dining space is the bright kitchen, complete with tile countertops, white appliances including a new dishwasher, and a breakfast bar. The kitchen seamlessly connects to a comfortable family room. A convenient powder room is also located on this level. Birch wood flooring continues throughout the first and second floors, adding to the homes cohesive design. A built-in desk at the stair landing provides an ideal workspace for a home office setup. On the third floor, youll find both bedrooms. The primary suite features a walk-in closet and an en-suite bathroom with luxury vinyl flooring. The secondary bedroom also includes its own private bathroom with a shower/tub combo and luxury vinyl flooring. The laundry area, equipped with a stackable washer and dryer, is conveniently located near both bedrooms for added ease. Step outside to the private patioan ideal space for BBQs, morning coffee, or simply relaxing while enjoying the peaceful greenbelt views. Additional highlights include an attached two-car garage with direct access and access to the communitys s
Features
Listing provided courtesy of Matthew Gregory of Gregory Real Estate Group. Last updated . Listing information © 2025 Sandicor.
Work with Us
Under the Compass brand, Ramon and his team take great pride in having the ability to utilize today's cutting edge technology, marketing resources, and local and global connections to perfectly unite extraordinary places with the extraordinary buyers who will cherish them as we do.
Contact Us
North County Office
12275 El Camino Real, Suite 100
San Diego, CA 92130
858.345.4514
La Jolla Office
7863 Girard Avenue, Suite 208
La Jolla, CA, 92037
858.277.3325
San Diego Office
655 W Broadway
San Diego, CA 92101
619.317.1875

This information is deemed reliable but not guaranteed. You should rely on this information only to decide whether or not to further investigate a particular property. BEFORE MAKING ANY OTHER DECISION, YOU SHOULD PERSONALLY INVESTIGATE THE FACTS (e.g. square footage and lot size) with the assistance of an appropriate professional. You may use this information only to identify properties you may be interested in investigating further. All uses except for personal, non-commercial use in accordance with the foregoing purpose are prohibited. Redistribution or copying of this information, any photographs or video tours is strictly prohibited. This information is derived from the Internet Data Exchange (IDX) service provided by Sandicor®. Displayed property listings may be held by a brokerage firm other than the broker and/or agent responsible for this display. The information and any photographs and video tours and the compilation from which they are derived is protected by copyright. Compilation © 2025 Sandicor®, Inc.
Copyright © 2025 Maldonado Team. All Rights Reserved.
Powered by: 

This information is deemed reliable but not guaranteed. You should rely on this information only to decide whether or not to further investigate a particular property. BEFORE MAKING ANY OTHER DECISION, YOU SHOULD PERSONALLY INVESTIGATE THE FACTS (e.g. square footage and lot size) with the assistance of an appropriate professional. You may use this information only to identify properties you may be interested in investigating further. All uses except for personal, non-commercial use in accordance with the foregoing purpose are prohibited. Redistribution or copying of this information, any photographs or video tours is strictly prohibited. This information is derived from the Internet Data Exchange (IDX) service provided by Sandicor®. Displayed property listings may be held by a brokerage firm other than the broker and/or agent responsible for this display. The information and any photographs and video tours and the compilation from which they are derived is protected by copyright. Compilation © 2025 Sandicor®, Inc.
Copyright © 2025 Maldonado Team. All Rights Reserved.
Powered by: 


































